Přemýšlíte o investici do nemovitosti v krásném městě Brandýs nad Orlicí?
Nabízím Vám exkluzivně k prodeji Penzion pod Hradem, který se nachází v obci Brandýs nad Orlicí. Jedná se o kombinaci penzionu se 4 pokoji s restaurací připravené k plnění přání a investičního záměru nového majitele. Co se týče penzionu, existuje možnost využití jako tradičního penzionu s restaurací, což poskytuje prostor pro pohodlné ubytování a stravování hostů. Alternativně je možné přeměnit nemovitost na bytové jednotky a pronajímat je, což otevírá další možnosti využití a investiční potenciál. Tato flexibilita umožňuje adaptovat se na potřeby trhu a maximalizovat výnosy z investice do nemovitosti.
PENZION S RESTAURACÍ POD HRADEM
Velká zavedená RESTAURACE je dobře vybavená a má několik klíčových prvků. Disponuje kompletním zařízením pro provoz včetně nábytku, zařízení baru, stolů a židlí, vhodných pro početnou klientelu. Dále má dvě prostorné kuchyně, což umožňuje plynulý chod přípravy jídel i při vyšší zátěži. Součástí restaurace je i pec určenou k pečení pizzy, chleba a masa, což rozšiřuje nabídku a přitahuje zákazníky. Prostory zahrnují také sklady potravin a nápojů, což je klíčové pro efektivní skladování surovin a zásob.
Kromě toho má restaurace prostorný salónek vhodný pro soukromé oslavy a akce, jako jsou narozeniny, svatební hostiny nebo firemní akce. Venkovní prostor zahrnuje zastřešenou pergolu a dvorek za domem, kde je možné umístit dětské hřiště nebo další venkovní vybavení, což zvyšuje atraktivitu místa pro rodiny s dětmi.
Jedním z unikátních prvků je speciální pec, ve které majitelé pečou vyhlášenou pizzu, oblíbenou v celém okolí. Tato nabídka představuje přidanou hodnotu a láká zákazníky do restaurace.
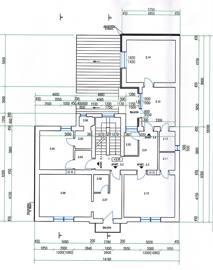
Na restauraci navazuje plně vybavený PENZION rodinného rázu se disponuje čtyřmi aprtmány/pokoji, z nichž dva jsou velké apartmány, které mají ložnici se čtyřmi lůžky a kuchyňskou část vybavenou jídelním stolem, kuchyňskou linkou, sporákem, lednicí a mikrovlnnou troubou a vlastní sociální zařízení. Tyto apartmány poskytují dostatek prostoru a vybavení pro pohodlný pobyt rodin či skupin hostů. Dále může penzion nabídnout jeden velký apartmán třílůžkový s kuchyňkou, jídelním stolem a samozřejmostí je také vlastní sociální zařízení. Pro práry penzion nabízí jeden dvoulůžkový pokoj s vlastním sociálním zařízením.
Dvoulůžkový pokoj nenabízí vlastní kuchyňský kout. Všechny pokoje jsou vybaveny vlastní koupelnou se sprchovým koutem, což zajišťuje soukromí a komfort pro hosty. Všechny pokoje jsou pečlivě zařízené a poskytují pohodlné ubytování pro hosty, kteří hledají relaxační a příjemný pobyt ve zavedeném penzionu.
Penzion má navíc k dispozici půdní prostory, které nabízejí potenciál pro vybudování dalších místností v podkroví. Tyto prostory lze využít k rozšíření obytné plochy domu, což představuje možnost pro další využití a optimalizaci dostupného prostoru.
V roce 2012 proběhla rozsáhlá rekonstrukce celého domu. Majitelé provedli modernizaci elektroinstalace s použitím měděných vodičů, což zajišťuje bezpečný a spolehlivý provoz elektrických zařízení. Dále byly instalovány nové odpadní systémy, což přispívá k efektivnímu odvádění odpadních vod a udržení hygienických standardů.
Rozvody vody byly také kompletně obnoveny, což znamená, že v domě jsou nové potrubní systémy, které zajišťují spolehlivý a dostatečný přísun vody pro všechny potřeby domácnosti. Zdi byly vyštukovány a omítnuty, což přispívá k estetickému vzhledu a zlepšení tepelné izolace domu.
Dále byly provedeny renovace podlah, což zahrnovalo instalaci nových podlahových krytin, které jsou odolné a snadno udržovatelné. Nové dveře byly nainstalovány jak v interiéru, tak i v exteriéru domu, což zlepšuje bezpečnost, izolaci a celkový vzhled. Je zde také nainstalovaný bezpečnostní kamerový systém.
Dřevěná euro okna byla také součástí rekonstrukce, což představuje moderní a efektivní způsob, jak zlepšit izolaci, zvukovou izolaci a celkový komfort bydlení v domě. Tyto renovace a modernizace zajišťují, že je penzion ve výborném stavu a připraven poskytnout pohodlné a kvalitní bydlení pro své obyvatele.
Inženýrské sítě v domě jsou plně modernizované a zahrnují elektrickou síť se standardními napěťovými úrovněmi 230 V a 380 V, což poskytuje dostatečnou elektrickou energii pro veškeré potřeby penzionu. Dále je k dispozici zemní plyn, což je efektivní zdroj energie pro vytápění a vaření, a obecní voda, která zajišťuje spolehlivý a neustálý přísun pitné vody do domu.
Co se týče topení, je v domě instalováno ústřední plynové topení, které zajišťuje účinné a ekonomické vytápění všech prostor. Provoz tohoto systému zajišťují dva kotle na zemní plyn, z nichž první vytápí první nadzemní podlaží a druhý zabezpečuje teplo pro druhé nadzemní podlaží. Tento systém umožňuje individuální řízení teploty v jednotlivých částech domu a poskytuje komfortní podmínky pro bydlení v celém objektu.
TECHNICKÉ PARAMETRY:
OKOLÍ BRANDÝSA NAD ORLICÍ
Okolí Brandýsa nad Orlicí nabízí bohaté možnosti pro aktivní odpočinek a turistiku. Městečko samo o sobě má charakter lázeňského a rehabilitačního místa, což přitahuje návštěvníky hledající relaxaci a péči o zdraví.
Jedním z významných bodů zájmu v Brandýse nad Orlicí je krásná kolonáda, která je známá svými léčivými prameny a poskytuje prostor pro odpočinek a rekreaci. Dalším zajímavým místem je Jeskyně J.A.Komenského, která představuje historickou památku spojenou s osobností Jana Amose Komenského. Přírodní Labyrint je dalším atraktivním místem v okolí Brandýsa nad Orlicí, kde mohou návštěvníci prozkoumávat zajímavé geologické útvary a přírodní krásy. Zřícenina hradu s vyhlídkou je ideálním místem pro milovníky historie a panoramatických výhledů. Tato lokalita nabízí působivý pohled na okolní krajinu a zároveň umožňuje návštěvníkům ponořit se do historie této oblasti. Nezapomenutelnou zážitkem může být i projížďka po vyhlášené cyklostezce, která prochází přímo přes Brandýs nad Orlicí a nabízí možnost objevovat okolní krajinu na kole.
Tato kombinace historických památek, přírodních krás a rekreačních možností činí z okolí Brandýsa nad Orlicí atraktivní destinaci pro turisty a návštěvníky hledající rozmanité zážitky.
Dále je důležité zmínit, že Brandýs nad Orlicí se nachází na hlavní železniční trati spojující Prahu, Českou Třebovou a Olomouc, což zajišťuje dobrou dopravní dostupnost a pohodlné cestování do těchto významných destinací. Pokud jde o vybavenost Brandýsa, město nabízí širokou škálu služeb a zařízení, včetně potravin, škol, školek, restaurací a dalších obchodů. Zvláště důležité je zdůraznit, že Brandýs nad Orlicí disponuje dobře vyvinutou infrastrukturou, která uspokojí potřeby obyvatel všech věkových kategorií.
V případě zájmu o prohlídku mě neváhejte kontaktovat. Těším se na osobní setkání s Vámi při prohlídce nemovitosti!
(kontakt a cena níže)
Brandýs nad Orlicí je město v okrese Ústí nad Orlicí v Pardubickém kraji. Rozkládá se na obou březích řeky Tiché Orlice na spojnici okresního města Ústí nad Orlicí, vzdáleného 11 km východním směrem, a Chocně, ležící 5 km západně od Brandýsa. Má přibližně 1 300 obyvatel. Městem prochází železniční tah Pardubice – Česká Třebová. Historické jádro města je od roku 1995 městskou památkovou zónou.
O nejstarších dějinách Brandýsa se dochovalo jen velmi málo zpráv. V roce 1227 se zmiňuje Loukoť, a to jako „jako majetek Kojaty Hrabišice, který ho odkázal svému sluhovi (družiníkovi) Oslovi“. Po založení hradu tato část města, jejíž existenci připomíná místní název, splynula s nově vzniklou osadou. Prvním dokladem, který se nepochybně vztahuje k Brandýsu nad Orlicí, je teprve zpráva o Sezemovi de Brandis, který byl ručitelem za dluhy Vítka ze Švábenic, usazeného na nepříliš vzdálených Českých Heřmanicích.
V osmdesátých letech 16. století bydlel Karel st. ze Žerotína v Brandýse se svými dvěma bratry a se sestrami. Když došlo v roce 1597 k majetkovému vyrovnání synů Jana st. ze Žerotína, obdržel Karel panství Rosice a Přerov a Brandýs připadl jeho mladšímu bratru Janu Divišovi, který zemřel v roce 1616 a panství odkázal své manželce Anně. Vdova však bezporostředně poté učinila s Karlem st. ze Žerotína smlouvu a Brandýs mu vložila do zemských desk. Karel jej však již v roce 1620 získal zpět a učinil z města útočiště pronásledovaných kněží jednoty bratrské, mezi nimiž byl i Jan Amos Komenský, který se zde v roce 1624 oženil s Dorotou Cyrillovou (sňatek zaznamenávají brandýské městské knihy).
Rodu Trauttmansdorffů patřilo brandýské panství po celé 18. století. František Norbert z Trauttmansdorffu (1766–1783), který v Brandýse začal stavět nový zámek, jehož jádro se dochovalo do současnosti.
Poté, co v roce 1806 Ferdinand z Trauttmansdorffu panství prodal, Brandýs v průběhu 19. století rychle měnil své majitele, dokonce byl několikrát nabízen ve veřejné dražbě. V roce 1869 panství koupil Jiří Parish, jemuž patřil Žamberk. V držení rodu Parishů Brandýs zůstal až do začátku 20. století. Ještě v době první poloviny 19. století se o Brandýs a jeho minulost začali zajímat protagonisté národního obrození. V roce 1838 sem zavítal jazykovědec a literární historik Alois Vojtěch Šembera, který zde pátral po ostatcích Karla st. ze Žerotína a pod dojmem z návštěvy místa mu navrhl postavit pomník. Idea byla realizována až v roce 1865.

Zdravotnické zařízení s dlouholetými zkušenostmi s léčbou pacientů s problémy pohybového ústrojí a s tradicí od roku 1898. Poskytují komplexní rehabilitační péči po úrazech a operacích, s bolestmi páteře a kloubů a s onemocněním neurologického systému. Nabízí také relaxační a léčebné pobyty.

Město Brandýs nad Orlicí stráží dva hrady – tedy dnes již pouze zříceniny: hrad Orlík a hrad Brandýs. Probíhají zde i mimořádné prohlídky s průvodcem (nově od sezony 2010) , které začínají na náměstí v Brandýse.
Hrad postavil Jindřich z Prostiboře ve 13. století. Ve druhé polovině 15. století drželi Brandýs Kostkové z postupic, od kterých jej roku 1506 koupil Vilém z Pernštejna. Za něj hrad ztratil svou rezidenční funkci a pomalu pustnul. Majitelé panství, kteří se často střídali, si pak vystavěli malý zámeček na dnešním náměstí. Hrad měl původně čtyři části: předmostí, předhradí přední a zadní hrad.
Byl obehnán třemi příkopy a byl střežen třemi věžemi. Jeho zříceniny dnes již nejsou nijak výrazné, snad i proto, že hradiště je silně zarostlé náletovými dřevinami. Přesto návštěvníka zaujmou, zvláště díky dosud dochovanému suterénu západního paláce, kde se dá na vlastní nebezpečí, přečkat i nepřízeň počasí.
Zdroj: https://www.kudyznudy.cz/aktivity/zricenica-hradu-brandys-nad-orlici

Zámek Brandýs nad Orlicí se nachází ve stejnojmenné obci Brandýs nad Orlicí nedaleko Ústí nad Orlicí ve východních Čechách. Barokní zámek z let 1781–1783 byl postaven stavitelem Josefem Tůmou na žádost rodiny Trautmannsdorfů. Budova se nachází v místech někdejšího kláštera Jednoty bratrské, později panského domu. V roce 1914 se zámek přiblížil neobarokní přestavbou Aloise Dlabače současnému stavu.
Po roce 1996 sloužila budova jako výchovný ústav pro problémové dívky. V roce 1997 poškodily zámek povodně. Provoz ústavu byl přerušen až v roce 2013, když spadl nad hlavním schodištěm strop. Jednu z dívek údajně zasáhly padající trosky, nicméně nedošlo k vážnějšímu zranění.
Od roku 2014 byl zámek opuštěný a Úřad pro zastupování státu ve věcech majetkových ho několikrát nabízel v dražbě. Ucpané okapní svody zničily čelní fasádu. Měděné parapety i mosazné kliky z interiéru byly ukradeny. V nevětrané budově se rozrostla dřevomorka. V roce 2019 po 4. kolech dražby získal zámek lékař Pavel Skalický, který plánuje budovu spolu s přáteli zachránit, rekonstruovat a částečně zpřístupnit veřejnosti.
![]()
Labyrint z habrů se nachází na jihovýchodním okraji města Brandýsa nad Orlicí mezi pomníkem Jana Amose Komenského a řekou Tichou Orlicí.
Labyrint (světa a ráje srdce) připomíná pobyt J. A. Komenského na brandýském panství Žerotínů na začátku 20. let 17. století. Dle návrhu Davida Růžičky realizoval Spolek Brandýs ve světě v roce 2003.
Labyrint leží na ose pomníku. Jeho půdorys je čtverec. Uličky tvoří poledníky a rovnoběžky (svět, zeměkouli), které vedou až do jeho středu (srdce, ráje).
Výtěžek ze vstupného do labyrintu je použit na jeho provoz a akce spolku. Mezi ně patří noční bloudění lybyrintem a multižánrový festival Brandýské Mámení, které se koná na začátku září, a jeho doprovodný program.
Zdroj: https://www.kudyznudy.cz/aktivity/prirodni-bludiste-brandys-nad-orlici

Čertova rokle se nachází poblíž přírodního bludiště, na zelené značce vedoucí z Brandýsa nad Orlicí do Oucmanic. Místem také prochází naučná stezka Oucmanice. Rokle je oblíbeným výletním místem, nejromantičtějším bodem trasy je pověstmi opředená čertova lávka.
Čertova rokle se nachází na bočním přítoku Tiché Orlice v blízkosti pomníku J. A. Komenského. Proud toku se zde zařezává do opukového masivu a vytváří tak hlubokou skalnatou rokli, o délce víc než půl kilometru. V zákrutu ve střední části vytváří levá stráň skalní stěnu až 10 m vysokou.
Skalnaté dno údolí tvoří několik větších a řadu menších stupňů, kde se po deštích či při jarním tání vytvářejí romantické vodopády a peřeje. Na stráních rokle se dochovaly původní bukové porosty. Nejzajímavější pohled na rokli je z Čertovy lávky.
Podle pověsti stával na kopci nad strží kdysi klášter. Mniši museli k jeho stavbě přinášet těžké kameny přes rokli, což bylo velmi namáhavé. Navíc se v těch místech objevoval čert, který se jejich prací dobře bavil a unaveným mnichům se posmíval. Jeho škodolibost se mu ale nevyplatila. Jednou ho totiž rozezlení mniši chytili a donutili, aby těžké kameny nosil za ně. Aby si usnadnil práci, postavil vynalézavý čert přes rokli lávku, které se od těch dob říká Čertova.
Zdroj: https://www.kudyznudy.cz/aktivity/certova-rokle-u-brandysa-nad-orlici

Kvalitní asfaltová cyklostezka značená jako cyklotrasa číslo 18 vede z městské části Ústí nad Orlicí – Kerhartice přes Brandýs nad Orlicí do Chocně. Vzhledem k jejímu rovinatému profilu a asfaltovému povrchu je vhodná pro rodiny s malými dětmi i in-line bruslaře. Pouze krátký úsek mezi Pernou a Brandýsem nad Orlicí musíme jet po silnici 3. třídy. Výlet je možné kombinovat s jízdou vlakem. Trať vede souběžně s cyklostezkou, místy v její těsné blízkosti, někdy se vzdálí, ale vždy je na dohled. Dětem, co mají rády vlaky, uděláme tímto výletem určitě radost. Cyklostezka prochází překrásným údolím řeky Tiché Orlice. Tato oblast díky údolním nivám s říčními meandry a vysoko se zvedajícími svahy byla vyhlášena přírodním parkem.
Zdroj: https://www.vylety-zabava.cz/cyklostezky-cyklotrasy-cyklovozik/orlicke-hory/704-cyklostezkou-z-usti-nad-orlici-do-chocne-udolim-tiche-orlice

telefon: +420 776 650 888
e-mail: renata.lexova@pohoda-rk.cz
web: https://renatalexova.cz
facebook:
Kompletní nabídka nemovitostí realitní kanceláře